情報更新日:2024年03月18日/広告有効期限:なし
表示閲覧回数(過去30日間):45
お急ぎの方はお電話からお気軽にどうぞ!
025-211-8670 営業時間 / 9:30〜17:00 定休日 / 水曜日、日曜日
>物件詳細情報
| 基本情報 | |
|---|---|
| 物件番号 | 10007805164 |
| 店舗形態 | 事務所 |
| オススメ業種 | 事務所 |
| 物件名 | マルヤマビル |
| 物件の状態 | 空き |
| 引越し時期 | 相談 |
| 契約形態と期間 | |
| 所在地・交通 | |
|---|---|
| 所在地 | 新潟県新潟市中央区米山3-1-63 |
| 交 通1 | 上越新幹線新潟駅 徒歩3分 |
| 交 通2 | - |
| 賃料 | |
|---|---|
| 賃 料 | 326,945円(税込) |
| 敷 金 |
10ヶ月 |
| 共益費・管理費 | 120,340円(税込) |
| その他 | |
|---|---|
| 備考 | ※エレベーター(令和5年リニューアル済み)※SECOMセキュリティ完備 ※トイレ改修済、ウォッシュレット完備 ※テナント様専用の貸し会議室あり ※リフレッシュルーム(喫煙室)あり ※LED照明に更新済み(事務所空室) |
| 建物 | |
|---|---|
| 建物構造 | 鉄骨鉄筋コンクリート造 |
| 建物階建て |
地上8階 |
| 施工年月 | 1976(昭和51)年 09月 |
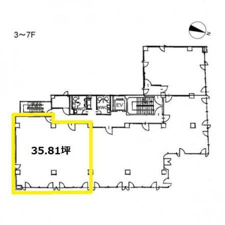
| 募集物件の階数 | 地上 5階 501-502号室 |
| 契約面積 | 118.38m2(35.81坪) |
| 用途地域 | 商業地域 |
| 設備 | |
|---|---|
| エレベータ | 有 |
| エアコン | 有り/個別 |
| トイレ | 有/共用 |
| 給湯室 | 有/共用 |
| キッチン | 有/共用 |
| ネット環境 | 有 |
| 床仕様 | OAフロア |
| セキュリティ | 機械警備 |
| 駐車場 | |
|---|---|
| 状 況 | 空有 |
| 駐車料金 | 12,100円(税込) |
| 取引情報 | |
|---|---|
| 取引態様 | 媒介 |
| 客付 | 可 |
この物件をチェックした人はこんな物件も見ています
- 新潟市中央区文京町、3階建てビルの2階部分の募集です♪ 事務所や倉庫におすすめです☆

新潟県新潟市中央区文京町-6-27
52.23m2(15.80坪)
55,000円(税込)
- 1階で物品や食品販売などができるスペースがあります♪住居としては利用できませんが、教室や作業場などにもおすすめです☆

新潟県新潟市中央区東大畑通-2番町470
84.79m2(25.65坪)
45,000円(税込)
- 契約から6ヶ月間は49,500円の限定賃料です!(6ヶ月目以降は99,000円)厨房が残っているので、セントラルキッチンやシェアキッチンなどの利用もご相談できます! 座敷の部屋があるので各種教室などにもおすすめです☆

新潟県新潟市中央区西堀通-8番町1581-22
104.72m2(31.68坪)
49,500円(税込)
- 木造平屋建て物件の一部、約11坪の倉庫です☆ 倉庫のみで事務所部分はありません

新潟県新潟市東区牡丹山2-1-4
38.07m2(11.52坪)
55,000円(税込)
- 1階倉庫2階事務所仕様のウェルズ平島に空きが出ます! 駐車場前面2台分無料♪ 追加駐車場もご用意できます☆

新潟県新潟市西区平島-1364-2
75.60m2(22.87坪)
132,000円(税込)
今日チェックした物件
- 新潟駅徒歩4分!利便性の良いオフィスビルです♪ 他の空き区画もございますので、詳細はお問合わせくださいませ^^
-

新潟県新潟市中央区東大通2-5-1
85.62m2(25.90坪)
227,920円(税込)
- 新潟駅徒歩4分!利便性の良いオフィスビルです♪ 他の空き区画もございますので、詳細はお問合わせくださいませ^^ビルの使用および入退室は24時間可能です☆
-

新潟県新潟市中央区東大通2-5-1
125.59m2(37.99坪)
334,312円(税込)
- 万代橋のたもと、7階の事務所です☆新潟の街並みを一望できるオフィスはいかがでしょうか^^
-

新潟県新潟市中央区下大川前通-2ノ町2230-33
93.63m2(28.32坪)
186,912円(税込)
- バス通り沿い、古町エリアのテナントです☆事務所、店舗、学習塾など様々な用途に合わせてお使いいただけます♪内覧希望など詳細はお問合わせくださいませ^^
-

新潟県新潟市中央区本町通-6番町1141-1
98.98m2(29.94坪)
230,536円(税込)
- マンション1階、約20坪の路面店舗☆古町十字路、本町市場まで徒歩圏内!
-

新潟県新潟市中央区新島町通-1ノ町1977-2
68.89m2(20.84坪)
160,468円(税込)
お急ぎの方はお電話からお気軽にどうぞ!
025-211-8670 営業時間 / 9:30〜17:00 定休日 / 水曜日、日曜日


025-211-8670



















025-211-8670