情報更新日:2023年08月25日/広告有効期限:なし
表示閲覧回数(過去30日間):10
お急ぎの方はお電話からお気軽にどうぞ!
025-211-8670 営業時間 / 9:30〜17:00 定休日 / 水曜日、日曜日
>物件詳細情報
| 基本情報 | |
|---|---|
| 物件番号 | 10007805285 |
| 店舗形態 | 事務所 |
| オススメ業種 | 事務所 |
| 物件名 | 木山17明石ビル 5-C |
| 物件の状態 | 空き |
| 引越し時期 | 相談 |
| 契約形態と期間 |
普通契約期間:2年間 |
| 所在地・交通 | |
|---|---|
| 所在地 | 新潟県新潟市中央区明石1-6-6 |
| 交 通1 | 上越新幹線新潟駅 徒歩10分 |
| 交 通2 | - |
| 賃料 | |
|---|---|
| 賃 料 | 250,954円(税込) |
| 敷 金 |
6ヶ月 |
| 共益費・管理費 | 44,286円(税込) |
| その他 | |
|---|---|
| 備考 | ※駐車場は機械式です |
| 建物 | |
|---|---|
| 建物構造 | 鉄骨鉄筋コンクリート造 |
| 建物階建て |
地上6階 |
| 施工年月 | 1991(平成3)年 03月 |
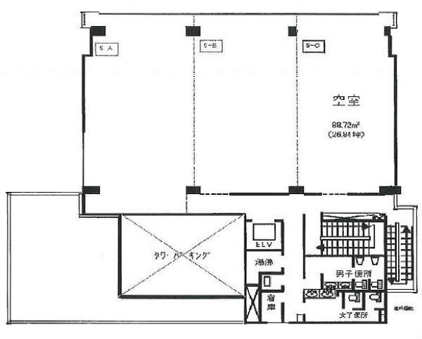
| 募集物件の階数 | 地上 5階 C号室 |
| 契約面積 | 88.72m2(26.84坪) |
| 用途地域 | 商業地域 |
| 設備 | |
|---|---|
| エレベータ | 有 |
| トイレ | 有/共用 |
| 給湯室 | 有/共用 |
| キッチン | 有/共用 |
| ネット環境 | 有 |
| セキュリティ | 機械警備 |
| 駐車場 | |
|---|---|
| 状 況 | 空有 |
| 駐車料金 | 16,500円(税込) |
| 取引情報 | |
|---|---|
| 取引態様 | 媒介 |
| 客付 | 不可 |
この物件をチェックした人はこんな物件も見ています
- 新潟駅から徒歩約1分のテナントビルです♪

新潟県新潟市中央区笹口1-18-1
109.09m2(33.00坪)
290,400円(税込)
- 契約から6ヶ月間は49,500円の限定賃料です!(6ヶ月目以降は99,000円)厨房が残っているので、セントラルキッチンやシェアキッチンなどの利用もご相談できます! 座敷の部屋があるので各種教室などにもおすすめです☆

新潟県新潟市中央区西堀通-8番町1581-22
104.72m2(31.68坪)
49,500円(税込)
- 中央区役所(NEXT21)や新潟市役所(学校町通)まで、どちらも徒歩で約10分の距離です♪ 東堀通のコインパーキング奥、2階建ての倉庫付き事務所☆

新潟県新潟市中央区東堀通-3番町466
64.85m2(19.62坪)
99,000円(税込)
- 新潟市中央区文京町、3階建てビルの2階部分の募集です♪ 事務所や倉庫におすすめです☆

新潟県新潟市中央区文京町-6-27
52.23m2(15.80坪)
55,000円(税込)
- 1階倉庫2階事務所仕様のウェルズ平島に空きが出ます! 駐車場前面2台分無料♪ 追加駐車場もご用意できます☆

新潟県新潟市西区平島-1364-2
75.60m2(22.87坪)
132,000円(税込)
今日チェックした物件
- 3階建てビルの2階部分、約20坪の広さがある貸事務所です☆
-

新潟県新潟市中央区弁天橋通2-30-11
69.21m2(20.94坪)
135,000円(税込)
- 新潟駅徒歩圏内、電車や車でのアクセス良好なオフィスビルです☆
-

新潟県新潟市中央区笹口1-26-9
57.10m2(17.27坪)
180,471円(税込)
- 新潟駅すぐ徒歩約1分、約40坪の大きさのテナントです☆
-

新潟県新潟市中央区花園1-4-6
132.39m2(40.05坪)
440,000円(税込)
- 古町中心部(古町通5番町)、新津屋小路沿いのマンション2階テナントです☆
-

新潟県新潟市中央区古町通-5番町608
65.90m2(19.93坪)
142,499円(税込)
お急ぎの方はお電話からお気軽にどうぞ!
025-211-8670 営業時間 / 9:30〜17:00 定休日 / 水曜日、日曜日


025-211-8670














025-211-8670