情報更新日:2024年08月24日/広告有効期限:なし
表示閲覧回数(過去30日間):81
お急ぎの方はお電話からお気軽にどうぞ!
025-211-8670 営業時間 / 9:30〜17:00 定休日 / 水曜日、日曜日
>物件詳細情報
| 基本情報 | |
|---|---|
| 物件番号 | 10007805592 | 
| 店舗形態 | 店舗, 店舗(飲食店可), 路面店舗 | 
| オススメ業種 | 軽飲食, 重飲食, サービス業, 物販関係 | 
| 物件名 | Premier Furumachi(プルミエ古町) | 
| 物件の状態 | 空き | 
| 引越し時期 | 即 | 
| 契約形態と期間 | 
        普通契約期間:5年間 | 
    
| 所在地・交通 | |
|---|---|
| 所在地 | 新潟県新潟市中央区古町通9番町-1480-1 | 
| 交 通1 | 新潟交通バス停「古町」 徒歩7分 | 
| 交 通2 | - | 
| 賃料 | |
|---|---|
| 賃 料 | 132,000円(税込) | 
| 敷 金 | 
      6ヶ月 | 
| その他 | |
|---|---|
| 備考 | ※町内会費実費 ※保証会社要加入:初回保証料として月額賃料等の100%、更新保証料として月額賃料等の10%、月額保証料として毎月300円(税別)かかります ※準防火地域・駐車場整備地区・道路斜線制限・隣地斜線制限あり | 
| 建物 | |
|---|---|
| 建物構造 | 鉄骨造 | 
| 建物階建て | 
      地上2階 | 
| 施工年月 | 2021(令和3)年 09月 | 
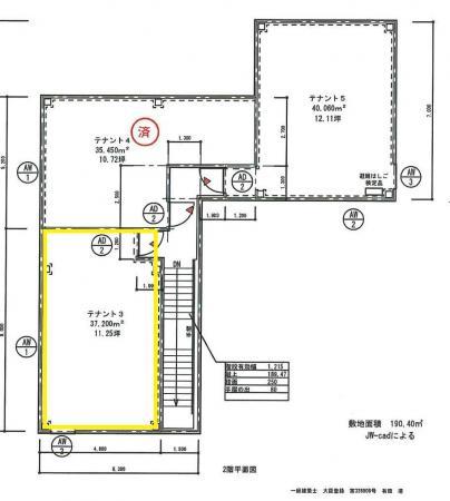
| 募集物件の階数 | 地上 2階 3号室 | 
| 契約面積 | 37.19m2(11.25坪) | 
| 延床面積 | 274.92m2(83.16坪) | 
| 敷地面積 | 190.40m2(57.60坪) | 
| 用途地域 | 商業地域 | 
| 設備 | |
|---|---|
| エレベータ | 無 | 
| 床仕様 | スケルトン | 
| セキュリティ | 無 | 
| 内装業者指定 | 無 | 
| 駐車場 | |
|---|---|
| 状 況 | 無し | 
| 取引情報 | |
|---|---|
| 取引態様 | 媒介 | 
| 客付 | 不可 | 
この物件をチェックした人はこんな物件も見ています
- 契約から6ヶ月間は49,500円の限定賃料です!(6ヶ月目以降は99,000円)マンション1階部分、約31坪の店舗です☆ 厨房が残っているので、セントラルキッチンやシェアキッチンなどの利用もご相談できます!
 
新潟県新潟市中央区西堀通-8番町1581-22
 
          104.72m2(31.68坪)
          49,500円(税込)        
- 1階で物品や食品販売などができるスペースもあります♪ フリーレントもお気軽にご相談ください!
 
新潟県新潟市中央区東大畑通-2番町470
 
          84.79m2(25.65坪)
          45,000円(税込)        
- 新潟市中央区文京町、3階建てビルの2階部分の募集です♪ 事務所や倉庫におすすめです☆
 
新潟県新潟市中央区文京町-6-27
 
          52.23m2(15.80坪)
          55,000円(税込)        
- 新潟駅至近、ホテル内2階店舗、2022年10月外観改修済み☆
 
新潟県新潟市中央区弁天1-2-4
 
          126.45m2(38.25坪)
          589,050円(税込)        
- 新潟駅より徒歩3分!アクセス良好のオフィス物件です☆
 
新潟県新潟市中央区東大通1-7-10
 
          73.65m2(22.28坪)
          171,556円(税込)        
今日チェックした物件
お急ぎの方はお電話からお気軽にどうぞ!
025-211-8670 営業時間 / 9:30〜17:00 定休日 / 水曜日、日曜日


025-211-8670












       
       
       
 
      

          




025-211-8670