情報更新日:2025年06月12日/広告有効期限:なし
表示閲覧回数(過去30日間):57
お急ぎの方はお電話からお気軽にどうぞ!
025-211-8670 営業時間 / 9:30〜17:00 定休日 / 水曜日、日曜日
>物件詳細情報
| 基本情報 | |
|---|---|
| 物件番号 | 10007805772 |
| 店舗形態 | 店舗, 店舗(飲食店可) |
| オススメ業種 | 美容関係, 軽飲食, サービス業 |
| 物件名 | グローバルビュー新潟 |
| 物件の状態 | 空き |
| 引越し時期 | 相談 |
| 契約形態と期間 |
普通契約期間:2年間 |
| 所在地・交通 | |
|---|---|
| 所在地 | 新潟県新潟市中央区弁天1-2-4 |
| 交 通1 | 上越新幹線新潟駅 徒歩1分 |
| 交 通2 | - |
| 賃料 | |
|---|---|
| 賃 料 | 589,050円(税込) |
| 敷 金 |
6ヶ月 |
| その他月額費用 1 | 看板料 55,000円(税込) |
| その他 | |
|---|---|
| 備考 | ※飲食店は応相談となります |
| 建物 | |
|---|---|
| 建物構造 | 鉄骨鉄筋コンクリート造 |
| 建物階建て |
地上13階 地下1階 |
| 施工年月 | 1981(昭和56)年 10月 |
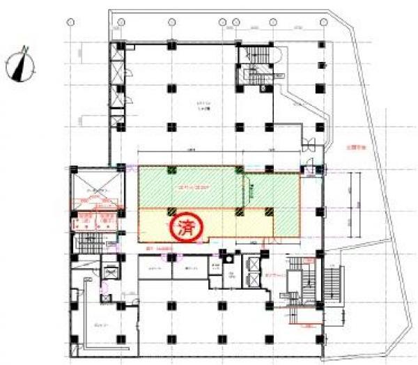
| 募集物件の階数 | 地上 2階 202号室 |
| 契約面積 | 126.45m2(38.25坪) |
| 用途地域 | 商業地域 |
| 設備 | |
|---|---|
| エレベータ | 有/2基 |
| トイレ | 有/共用 |
| 床仕様 | スケルトン |
| 駐車場 | |
|---|---|
| 状 況 | 無し |
| 取引情報 | |
|---|---|
| 取引態様 | 媒介 |
| 客付 | 不可 |
この物件をチェックした人はこんな物件も見ています
- 1階で物品や食品販売などができるスペースもあります♪ フリーレントもお気軽にご相談ください!

新潟県新潟市中央区東大畑通-2番町470
84.79m2(25.65坪)
45,000円(税込)
- 新潟市中央区文京町、3階建てビルの2階部分の募集です♪ 事務所や倉庫におすすめです☆

新潟県新潟市中央区文京町-6-27
52.23m2(15.80坪)
55,000円(税込)
- 契約から6ヶ月間は49,500円の限定賃料です!(6ヶ月目以降は99,000円)マンション1階部分、約31坪の店舗です☆ 厨房が残っているので、セントラルキッチンやシェアキッチンなどの利用もご相談できます!

新潟県新潟市中央区西堀通-8番町1581-22
104.72m2(31.68坪)
49,500円(税込)
- 中央区役所(NEXT21)や新潟市役所(学校町通)まで、どちらも徒歩で約10分の距離です♪ 東堀通のコインパーキング奥、2階建ての倉庫付き事務所☆

新潟県新潟市中央区東堀通-3番町466
64.85m2(19.62坪)
99,000円(税込)
- 幹線道路沿いに1棟貸しテナントが空きます♪駐車場20台有り☆業種もお気軽にご相談ください!

新潟県新潟市中央区堀之内-14-1
150.75m2(45.60坪)
550,000円(税込)
今日チェックした物件
お急ぎの方はお電話からお気軽にどうぞ!
025-211-8670 営業時間 / 9:30〜17:00 定休日 / 水曜日、日曜日


025-211-8670



















025-211-8670