情報更新日:2023年11月16日/広告有効期限:なし
表示閲覧回数(過去30日間):16
お急ぎの方はお電話からお気軽にどうぞ!
025-211-8670 営業時間 / 9:30〜17:00 定休日 / 水曜日、日曜日
>物件詳細情報
| 基本情報 | |
|---|---|
| 物件番号 | 10007805877 | 
| 店舗形態 | 店舗 | 
| オススメ業種 | |
| 物件名 | 万代島ビル | 
| 物件の状態 | 改築中 | 
| 引越し時期 | 2024(令和6)年04月上旬 | 
| 契約形態と期間 | |
| 所在地・交通 | |
|---|---|
| 所在地 | 新潟県新潟市中央区万代島-5番1号 | 
| 交 通1 | 新潟交通バス停「朱鷺メッセ」 徒歩2分 | 
| 交 通2 | - | 
| 賃料 | |
|---|---|
| 賃 料 | 賃料未定 | 
| 敷 金 | 
      12ヶ月 | 
| その他 | |
|---|---|
| 備考 | ※スケルトン渡しのため、内装仕上げ無し | 
| 建物 | |
|---|---|
| 建物構造 | 鉄骨鉄筋コンクリート造 | 
| 建物階建て | 
      地上31階 地下1階 | 
| 施工年月 | 2003(平成15)年 03月 | 
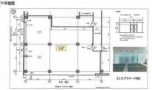
| 募集物件の階数 | 地上 2階 | 
| 契約面積 | 279.77m2(84.63坪) | 
| 延床面積 | 52,475.33m2(15,873.79坪) | 
| 天井高 | 3,000mm | 
| 用途地域 | 準工業 | 
| 設備 | |
|---|---|
| エレベータ | 有/3基以上 | 
| エアコン | 無 | 
| トイレ | 有/共用 | 
| 給湯室 | 有/共用 | 
| キッチン | 有/共用 | 
| セキュリティ | 機械警備 | 
| 照明設備 | 無 | 
| 駐車場 | |
|---|---|
| 状 況 | 空有 | 
| 駐車料金 | 27,500円(税込) | 
| 取引情報 | |
|---|---|
| 取引態様 | 媒介 | 
| 客付 | 不可 | 
この物件をチェックした人はこんな物件も見ています
- 新潟市中央区文京町、3階建てビルの2階部分の募集です♪ 事務所や倉庫におすすめです☆
 
新潟県新潟市中央区文京町-6-27
 
          52.23m2(15.80坪)
          55,000円(税込)        
- 新潟駅至近、ホテル内2階店舗、2022年10月外観改修済み☆
 
新潟県新潟市中央区弁天1-2-4
 
          126.45m2(38.25坪)
          589,050円(税込)        
- 1階で物品や食品販売などができるスペースもあります♪ フリーレントもお気軽にご相談ください!
 
新潟県新潟市中央区東大畑通-2番町470
 
          84.79m2(25.65坪)
          45,000円(税込)        
- 中央区役所(NEXT21)や新潟市役所(学校町通)まで、どちらも徒歩で約10分の距離です♪ 東堀通のコインパーキング奥、2階建ての倉庫付き事務所☆
 
新潟県新潟市中央区東堀通-3番町466
 
          64.85m2(19.62坪)
          99,000円(税込)        
- 新潟駅徒歩圏内、万代エリアの貸事務所です☆ 8階建てビルの最上階♪
 
新潟県新潟市中央区弁天1-4-22
 
          94.09m2(28.46坪)
          220,000円(税込)        
今日チェックした物件
お急ぎの方はお電話からお気軽にどうぞ!
025-211-8670 営業時間 / 9:30〜17:00 定休日 / 水曜日、日曜日


025-211-8670








          




025-211-8670