情報更新日:2024年09月30日/広告有効期限:なし
表示閲覧回数(過去30日間):34
お急ぎの方はお電話からお気軽にどうぞ!
025-211-8670 営業時間 / 9:30〜17:00 定休日 / 水曜日、日曜日
>物件詳細情報
| 基本情報 | |
|---|---|
| 物件番号 | 10007805889 | 
| 店舗形態 | 事務所 | 
| オススメ業種 | 事務所 | 
| 物件名 | 太陽生命新潟ビル | 
| 物件の状態 | 空き | 
| 引越し時期 | 相談 | 
| 契約形態と期間 | 
                定期再契約:可 | 
    
| 所在地・交通 | |
|---|---|
| 所在地 | 新潟県新潟市中央区万代4-1-11 | 
| 交 通1 | 上越新幹線新潟駅 徒歩10分 | 
| 交 通2 | - | 
| 賃料 | |
|---|---|
| 賃 料 | 賃料未定 | 
| 敷 金 | 
      12ヶ月 | 
| 共益費・管理費 | 195,563円(税込) | 
| その他 | |
|---|---|
| 備考 | ※空調費:500円/坪 ※平成20年度耐震改修完了 ※8階リフレッシュルームあり ※駐車場の料金・空きは要確認(機械式) | 
| 建物 | |
|---|---|
| 建物構造 | 鉄骨鉄筋コンクリート造 | 
| 建物階建て | 
      地上9階 | 
| 施工年月 | 1976(昭和51)年 12月 | 
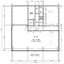
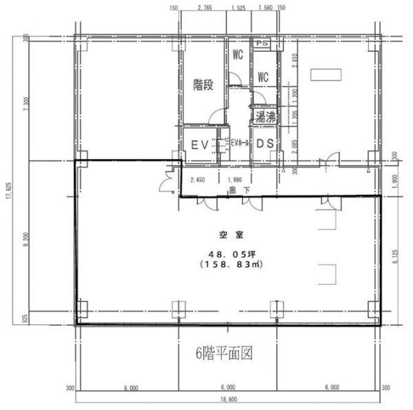
| 募集物件の階数 | 地上 6階 | 
| 契約面積 | 158.83m2(48.05坪) | 
| 延床面積 | 2,783.87m2(842.12坪) | 
| 敷地面積 | 254.88m2(77.10坪) | 
| 天井高 | 2,500mm | 
| 用途地域 | 商業地域 | 
| 設備 | |
|---|---|
| エレベータ | 有 | 
| エアコン | 有り/個別 | 
| トイレ | 有/共用 | 
| 給湯室 | 有/共用 | 
| キッチン | 有/共用 | 
| セキュリティ | 機械警備 | 
| 駐車場 | |
|---|---|
| 状 況 | 空有 | 
| 敷 金 | 3ヶ月 | 
| 取引情報 | |
|---|---|
| 取引態様 | 媒介 | 
| 客付 | 不可 | 
この物件をチェックした人はこんな物件も見ています
- 新潟市中央区文京町、3階建てビルの2階部分の募集です♪ 事務所や倉庫におすすめです☆
 
新潟県新潟市中央区文京町-6-27
 
          52.23m2(15.80坪)
          55,000円(税込)        
- 新潟駅至近、ホテル内2階店舗、2022年10月外観改修済み☆
 
新潟県新潟市中央区弁天1-2-4
 
          126.45m2(38.25坪)
          589,050円(税込)        
- 1階で物品や食品販売などができるスペースもあります♪ フリーレントもお気軽にご相談ください!
 
新潟県新潟市中央区東大畑通-2番町470
 
          84.79m2(25.65坪)
          45,000円(税込)        
- 木造平屋建て物件の一部、約11坪の倉庫です☆
 
新潟県新潟市東区牡丹山2-1-4
 
          38.07m2(11.52坪)
          55,000円(税込)        
- 新潟駅徒歩圏内、万代エリアの貸事務所です☆ 8階建てビルの最上階♪
 
新潟県新潟市中央区弁天1-4-22
 
          94.09m2(28.46坪)
          220,000円(税込)        
今日チェックした物件
お急ぎの方はお電話からお気軽にどうぞ!
025-211-8670 営業時間 / 9:30〜17:00 定休日 / 水曜日、日曜日


025-211-8670












                   
      

          




025-211-8670