情報更新日:2025年06月28日/広告有効期限:なし
表示閲覧回数(過去30日間):45
お急ぎの方はお電話からお気軽にどうぞ!
025-211-8670 営業時間 / 9:30〜17:00 定休日 / 水曜日、日曜日
>物件詳細情報
| 基本情報 | |
|---|---|
| 物件番号 | 10007805996 |
| 店舗形態 | 事務所 |
| オススメ業種 | 事務所 |
| 物件名 | 欅アベニュー貸事務所 |
| 物件の状態 | 空き |
| 引越し時期 | 相談 |
| 契約形態と期間 |
普通契約期間:2年間22,000円 |
| 所在地・交通 | |
|---|---|
| 所在地 | 新潟県新潟市中央区米山-5-6 |
| 交 通1 | 上越新幹線新潟駅 徒歩14分 |
| 交 通2 | - |
| 賃料 | |
|---|---|
| 賃 料 | 121,000円(税込) |
| 敷 金 |
3ヶ月 |
| 共益費・管理費 | 3,000円(税込) |
| その他月額費用 1 | 町内費 500円(税込) |
| 礼 金 | 1ヶ月 |
| その他 | |
|---|---|
| 備考 | 借家人賠償付保険要加入。保証会社加入:月額賃料等合計の1ヶ月分、要連帯保証人。貸室仲介手数料:賃料1ヶ月+消費税。駐車場仲介手数料:駐車料金1ヶ月+消費税。 |
| 建物 | |
|---|---|
| 建物構造 | 鉄骨造 |
| 建物階建て |
地上4階 |
| 施工年月 | 2005(平成17)年 09月 |
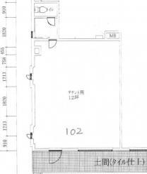
| 募集物件の階数 | 地上 1階 102号室 |
| 契約面積 | 39.74m2(12.02坪) |
| 設備 | |
|---|---|
| 水道 | 公営 |
| 下水道 | 公共下水 |
| ガス | オール電化 |
| エレベータ | 無 |
| エアコン | 有 |
| トイレ | 有/専用 |
| 照明設備 | 有 |
| 駐車場 | |
|---|---|
| 状 況 | 空有 |
| 駐車料金 | 11,000円(税込) |
| 空き台数 | 1台 |
| 取引情報 | |
|---|---|
| 取引態様 | 媒介 |
| 客付 | 不可 |
この物件をチェックした人はこんな物件も見ています
- 1階で物品や食品販売などができるスペースがあります♪ 住居としては利用できませんが、教室や作業場などにもおすすめです☆ 室内は自由にリノベーションできます(DIY可)

新潟県新潟市中央区東大畑通-2番町470
84.79m2(25.65坪)
45,000円(税込)
- 中央区役所(NEXT21)や新潟市役所(学校町通)まで、どちらも徒歩で約10分の距離です♪ 東堀通のコインパーキング奥、2階建ての倉庫付き事務所☆

新潟県新潟市中央区東堀通-3番町466
64.85m2(19.62坪)
99,000円(税込)
- 新潟市中央区文京町、3階建てビルの2階部分の募集です♪ 事務所や倉庫におすすめです☆

新潟県新潟市中央区文京町-6-27
52.23m2(15.80坪)
55,000円(税込)
- バイパス紫竹山インターそば、アクセス良好☆(短期利用可能)

新潟県新潟市中央区紫竹山3-9-1
45.79m2(13.85坪)
92,400円(税込)
- 一棟貸しのテナント、建物裏手含めて13台駐車可能です☆ 店舗でも事務所でもご利用いただけます♪(業種はご相談ください)

新潟県新潟市東区藤見町2-8-9
155.50m2(47.04坪)
495,000円(税込)
今日チェックした物件
お急ぎの方はお電話からお気軽にどうぞ!
025-211-8670 営業時間 / 9:30〜17:00 定休日 / 水曜日、日曜日


025-211-8670



















025-211-8670