情報更新日:2024年09月30日/広告有効期限:なし
表示閲覧回数(過去30日間):10
お急ぎの方はお電話からお気軽にどうぞ!
025-211-8670 営業時間 / 9:30〜17:00 定休日 / 水曜日、日曜日
>物件詳細情報
| 基本情報 | |
|---|---|
| 物件番号 | 10007806159 |
| 店舗形態 | 事務所 |
| オススメ業種 | 事務所 |
| 物件名 | 太陽生命新潟ビル |
| 物件の状態 | 空き |
| 引越し時期 | 相談 |
| 契約形態と期間 |
定期再契約:可 |
| 所在地・交通 | |
|---|---|
| 所在地 | 新潟県新潟市中央区万代4-1-11 |
| 交 通1 | 上越新幹線新潟駅 徒歩10分 |
| 交 通2 | - |
| 賃料 | |
|---|---|
| 賃 料 | 賃料未定 |
| 敷 金 |
12ヶ月 |
| 共益費・管理費 | 132,844円(税込) |
| その他 | |
|---|---|
| 備考 | ※空調費:500円/坪 ※平成20年度耐震改修完了 ※8階リフレッシュルームあり ※駐車場の料金・空きは要確認(機械式) |
| 建物 | |
|---|---|
| 建物構造 | 鉄骨鉄筋コンクリート造 |
| 建物階建て |
地上9階 |
| 施工年月 | 1976(昭和51)年 12月 |
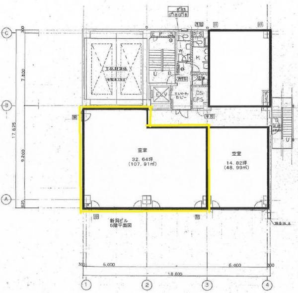
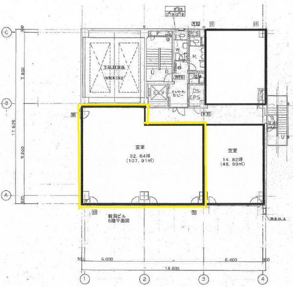
| 募集物件の階数 | 地上 5階 |
| 契約面積 | 107.91m2(32.64坪) |
| 延床面積 | 2,783.87m2(842.12坪) |
| 敷地面積 | 254.88m2(77.10坪) |
| 天井高 | 2,500mm |
| 用途地域 | 商業地域 |
| 設備 | |
|---|---|
| エレベータ | 有 |
| エアコン | 有り/個別 |
| トイレ | 有/共用 |
| 給湯室 | 有/共用 |
| キッチン | 有/共用 |
| セキュリティ | 機械警備 |
| 駐車場 | |
|---|---|
| 状 況 | 空有 |
| 敷 金 | 3ヶ月 |
| 取引情報 | |
|---|---|
| 取引態様 | 媒介 |
| 客付 | 不可 |
この物件をチェックした人はこんな物件も見ています
- 新潟市中央区文京町、3階建てビルの2階部分の募集です♪ 事務所や倉庫におすすめです☆

新潟県新潟市中央区文京町-6-27
52.23m2(15.80坪)
55,000円(税込)
- 1階で物品や食品販売などができるスペースもあります♪ フリーレントもお気軽にご相談ください!

新潟県新潟市中央区東大畑通-2番町470
84.79m2(25.65坪)
45,000円(税込)
- 木造平屋建て物件の一部、約11坪の倉庫です☆

新潟県新潟市東区牡丹山2-1-4
38.07m2(11.52坪)
55,000円(税込)
- 中央区役所(NEXT21)や新潟市役所(学校町通)まで、どちらも徒歩で約10分の距離です♪ 東堀通のコインパーキング奥、2階建ての倉庫付き事務所☆

新潟県新潟市中央区東堀通-3番町466
64.85m2(19.62坪)
99,000円(税込)
- 新潟駅近く、けやき通り沿いビルの2階テナントです☆ 1階にセブンイレブンが入ってます♪

新潟県新潟市中央区天神1-17-1
72.86m2(22.04坪)
161,546円(税込)
今日チェックした物件
- 新潟市で最も活気に溢れた街、万代エリアの1階テナントです☆
-

新潟県新潟市中央区万代1-2-19
97.72m2(29.56坪)
536,514円(税込)
- 新潟駅から徒歩3分のビルです☆テナント様専用の貸し会議室やリフレッシュルーム(喫煙室)などもあります♪ご内覧希望の際は、事前にご予約をお願いします!
-

新潟県新潟市中央区米山3-1-63
120.36m2(36.41坪)
332,423円(税込)
- 笹出線沿いのオフィスビル、1階にローソンが入っていて便利です☆
-

新潟県新潟市中央区近江2-20-38
108.43m2(32.80坪)
173,184円(税込)
- 35坪ほどの広さがあるテナントです、貸事務所におすすめ☆
-

新潟県新潟市中央区新島町通-1ノ町1977-2
119.56m2(36.17坪)
159,148円(税込)
お急ぎの方はお電話からお気軽にどうぞ!
025-211-8670 営業時間 / 9:30〜17:00 定休日 / 水曜日、日曜日


025-211-8670



















025-211-8670