情報更新日:2024年09月13日/広告有効期限:なし
表示閲覧回数(過去30日間):32
お急ぎの方はお電話からお気軽にどうぞ!
025-211-8670 営業時間 / 9:30〜17:00 定休日 / 水曜日、日曜日
>物件詳細情報
| 基本情報 | |
|---|---|
| 物件番号 | 10007806162 |
| 店舗形態 | 事務所 |
| オススメ業種 | 事務所 |
| 物件名 | だいし海上ビル |
| 物件の状態 | 空き |
| 引越し時期 | 即 |
| 契約形態と期間 | |
| 所在地・交通 | |
|---|---|
| 所在地 | 新潟県新潟市中央区東大通2-1-18 |
| 交 通1 | 上越新幹線新潟駅 徒歩5分 |
| 交 通2 | - |
| 賃料 | |
|---|---|
| 賃 料 | 賃料未定 |
| 敷 金 |
12ヶ月 |
| その他 | |
|---|---|
| 備考 | ※駐車場は要空き確認 |
| 建物 | |
|---|---|
| 建物構造 | 鉄骨鉄筋コンクリート造 |
| 建物階建て |
地上9階 地下1階 |
| 施工年月 | 1981(昭和56)年 03月 |
| 募集物件の階数 | 地上 5階 |
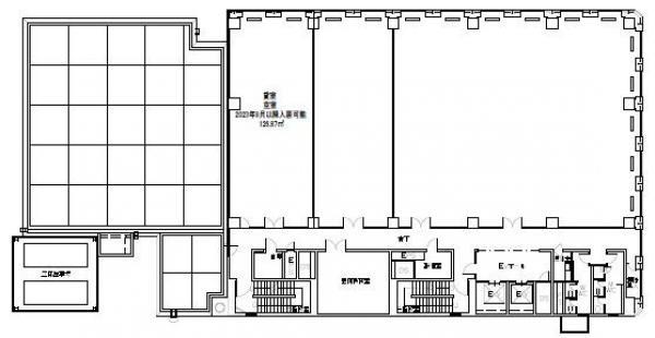
| 契約面積 | 126.87m2(38.38坪) |
| 基準階面積 | 786.78m2(238.00坪) |
| 天井高 | 2,600mm |
| 用途地域 | 商業地域 |
| 設備 | |
|---|---|
| エレベータ | 有/2基 |
| エアコン | 有り/個別 |
| トイレ | 有/共用 |
| 給湯室 | 有/共用 |
| キッチン | 有/共用 |
| ネット環境 | 有 |
| セキュリティ | 機械警備 |
| 駐車場 | |
|---|---|
| 状 況 | 空有 |
| 駐車料金 | 25,000円(税込) |
| 取引情報 | |
|---|---|
| 取引態様 | 媒介 |
| 客付 | 不可 |
この物件をチェックした人はこんな物件も見ています
- 1階で物品や食品販売などができるスペースがあります♪住居としては利用できませんが、教室や作業場などにもおすすめです☆

新潟県新潟市中央区東大畑通-2番町470
84.79m2(25.65坪)
45,000円(税込)
- 新潟市中央区文京町、3階建てビルの2階部分の募集です♪ 事務所や倉庫におすすめです☆

新潟県新潟市中央区文京町-6-27
52.23m2(15.80坪)
55,000円(税込)
- 木造平屋建て物件の一部、約11坪の倉庫です☆ 倉庫のみで事務所部分はありません

新潟県新潟市東区牡丹山2-1-4
38.07m2(11.52坪)
55,000円(税込)
- 中央区役所(NEXT21)や新潟市役所(学校町通)まで、どちらも徒歩で約10分の距離です♪ 東堀通のコインパーキング奥、2階建ての倉庫付き事務所☆

新潟県新潟市中央区東堀通-3番町466
64.85m2(19.62坪)
99,000円(税込)
- 1階倉庫2階事務所仕様のウェルズ平島に空きが出ます! 駐車場前面2台分無料♪ 追加駐車場もご用意できます☆

新潟県新潟市西区平島-1364-2
75.60m2(22.87坪)
132,000円(税込)
今日チェックした物件
- 新潟駅徒歩4分!利便性の良いオフィスビルです♪ 他の空き区画もございますので、詳細はお問合わせくださいませ^^ビルの使用および入退室は24時間可能です☆
-

新潟県新潟市中央区東大通2-5-1
125.59m2(37.99坪)
334,312円(税込)
- 新潟駅から徒歩3分のビルです☆テナント様専用の貸し会議室やリフレッシュルーム(喫煙室)などもあります♪ご内覧希望の際は、事前にご予約をお願いします!
-

新潟県新潟市中央区米山3-1-63
118.38m2(35.81坪)
326,945円(税込)
- 新潟駅と官公庁施設の中間に位置し、ビジネスの活動拠点としてオススメです☆
-

新潟県新潟市中央区東中通-1番町86-51
75.27m2(22.77坪)
賃料未定
- 万代橋のたもと、7階の事務所です☆新潟の街並みを一望できるオフィスはいかがでしょうか^^
-

新潟県新潟市中央区下大川前通-2ノ町2230-33
93.63m2(28.32坪)
186,912円(税込)
- マンション1階、約20坪の路面店舗☆古町十字路、本町市場まで徒歩圏内!
-

新潟県新潟市中央区新島町通-1ノ町1977-2
68.89m2(20.84坪)
160,468円(税込)
お急ぎの方はお電話からお気軽にどうぞ!
025-211-8670 営業時間 / 9:30〜17:00 定休日 / 水曜日、日曜日


025-211-8670













025-211-8670