情報更新日:2023年06月16日/広告有効期限:なし
表示閲覧回数(過去30日間):30
お急ぎの方はお電話からお気軽にどうぞ!
025-211-8670 営業時間 / 9:30〜17:00 定休日 / 水曜日、日曜日
>物件詳細情報
| 基本情報 | |
|---|---|
| 物件番号 | 10007806163 | 
| 店舗形態 | 店舗 | 
| オススメ業種 | |
| 物件名 | 新潟日報メディアシップ | 
| 物件の状態 | 空き | 
| 引越し時期 | 相談 | 
| 契約形態と期間 | 
        普通契約期間:2年間 | 
    
| 所在地・交通 | |
|---|---|
| 所在地 | 新潟県新潟市中央区万代3-1-1 | 
| 交 通1 | 上越新幹線新潟駅 徒歩10分 | 
| 交 通2 | - | 
| 賃料 | |
|---|---|
| 賃 料 | 賃料未定 | 
| 敷 金 | 
      敷金未定 | 
| その他 | |
|---|---|
| 備考 | |
| 建物 | |
|---|---|
| 建物構造 | 鉄骨造 | 
| 建物階建て | 
      地上20階 地下1階 | 
| 施工年月 | 2013(平成25)年 01月 | 
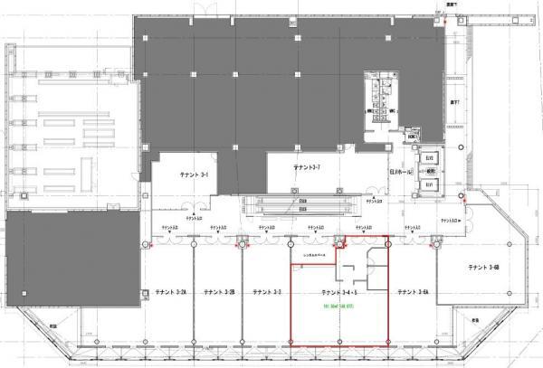
| 募集物件の階数 | 地上 3階 3-4,5号室 | 
| 契約面積 | 161.58m2(48.88坪) | 
| 用途地域 | 商業地域 | 
| 設備 | |
|---|---|
| エレベータ | 有/3基以上 | 
| セキュリティ | 機械警備 | 
| 利用時間 | 時間制限有 | 
| 駐車場 | |
|---|---|
| 状 況 | 近隣 | 
| 取引情報 | |
|---|---|
| 取引態様 | 媒介 | 
| 客付 | 不可 | 
この物件をチェックした人はこんな物件も見ています
- 1階で物品や食品販売などができるスペースもあります♪ フリーレントもお気軽にご相談ください!
 
新潟県新潟市中央区東大畑通-2番町470
 
          84.79m2(25.65坪)
          45,000円(税込)        
- 新潟市中央区文京町、3階建てビルの2階部分の募集です♪ 事務所や倉庫におすすめです☆
 
新潟県新潟市中央区文京町-6-27
 
          52.23m2(15.80坪)
          55,000円(税込)        
- 新潟駅至近、ホテル内2階店舗、2022年10月外観改修済み☆
 
新潟県新潟市中央区弁天1-2-4
 
          126.45m2(38.25坪)
          589,050円(税込)        
- 新潟駅より徒歩3分!アクセス良好のオフィス物件です☆
 
新潟県新潟市中央区東大通1-7-10
 
          73.65m2(22.28坪)
          171,556円(税込)        
- 新潟駅より徒歩3分!アクセス良好のオフィス物件です☆
 
新潟県新潟市中央区東大通1-7-10
 
          40.79m2(12.34坪)
          95,018円(税込)        
今日チェックした物件
お急ぎの方はお電話からお気軽にどうぞ!
025-211-8670 営業時間 / 9:30〜17:00 定休日 / 水曜日、日曜日


025-211-8670












          




025-211-8670