情報更新日:2024年09月13日/広告有効期限:なし
表示閲覧回数(過去30日間):87
お急ぎの方はお電話からお気軽にどうぞ!
025-211-8670 営業時間 / 9:30〜17:00 定休日 / 水曜日、日曜日
>物件詳細情報
| 基本情報 | |
|---|---|
| 物件番号 | 10007806280 |
| 店舗形態 | 事務所 |
| オススメ業種 | 事務所 |
| 物件名 | 新潟東京海上日動ビルディング |
| 物件の状態 | 空き |
| 引越し時期 | 即 |
| 契約形態と期間 | |
| 所在地・交通 | |
|---|---|
| 所在地 | 新潟県新潟市中央区万代2-3-6 |
| 交 通1 | 上越新幹線新潟駅 徒歩12分 |
| 交 通2 | - |
| 賃料 | |
|---|---|
| 賃 料 | 賃料未定 |
| 敷 金 |
12ヶ月 |
| その他 | |
|---|---|
| 備考 | ※駐車場は要空き確認 |
| 建物 | |
|---|---|
| 建物構造 | 鉄骨鉄筋コンクリート造 |
| 建物階建て |
地上9階 地下1階 |
| 施工年月 | 1991(平成3)年 07月 |
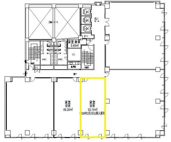
| 募集物件の階数 | 地上 3階 |
| 契約面積 | 82.19m2(24.86坪) |
| 延床面積 | 9,060.84m2(2,740.90坪) |
| 天井高 | 2,700mm |
| 用途地域 | 商業地域 |
| 設備 | |
|---|---|
| エレベータ | 有/3基以上 |
| エアコン | 有り/個別 |
| トイレ | 有/共用 |
| 給湯室 | 有/共用 |
| キッチン | 有/共用 |
| ネット環境 | 有 |
| セキュリティ | 機械警備 |
| 駐車場 | |
|---|---|
| 状 況 | 空有 |
| 駐車料金 | 25,000円(税込) |
| 取引情報 | |
|---|---|
| 取引態様 | 媒介 |
| 客付 | 不可 |
この物件をチェックした人はこんな物件も見ています
- 1階で物品や食品販売などができるスペースがあります♪住居としては利用できませんが、教室や作業場などにもおすすめです☆

新潟県新潟市中央区東大畑通-2番町470
84.79m2(25.65坪)
45,000円(税込)
- 新潟市中央区文京町、3階建てビルの2階部分の募集です♪ 事務所や倉庫におすすめです☆

新潟県新潟市中央区文京町-6-27
52.23m2(15.80坪)
55,000円(税込)
- 木造平屋建て物件の一部、約11坪の倉庫です☆ 倉庫のみで事務所部分はありません

新潟県新潟市東区牡丹山2-1-4
38.07m2(11.52坪)
55,000円(税込)
- 中央区役所(NEXT21)や新潟市役所(学校町通)まで、どちらも徒歩で約10分の距離です♪ 東堀通のコインパーキング奥、2階建ての倉庫付き事務所☆

新潟県新潟市中央区東堀通-3番町466
64.85m2(19.62坪)
99,000円(税込)
- 1階倉庫2階事務所仕様のウェルズ平島に空きが出ます! 駐車場前面2台分無料♪ 追加駐車場もご用意できます☆

新潟県新潟市西区平島-1364-2
75.60m2(22.87坪)
132,000円(税込)
今日チェックした物件
- 国道460号線沿い、飲食店可、スナック跡の平屋テナントです☆ 駐車場は3~4台駐車可能です♪(物置スペースあり)
-

新潟県新潟市南区白根ノ内七軒-759-2
65.79m2(19.90坪)
82,500円(税込)
- 発展する万代シティの中心に位置する、インテリジェントビルです♪ ATMが入っていた小さめの区画です☆
-

新潟県新潟市中央区万代4-4-27
31.93m2(9.66坪)
賃料未定
- 角部屋日当たり良好☆ネットも無料でご利用いただけます♪
-

新潟県新潟市中央区東大通2-9-1
23.14m2(7.00坪)
49,500円(税込)
- 万代橋のたもと、9階の事務所です☆ 新潟の街並みを一望できるオフィスはいかがでしょうか^^
-

新潟県新潟市中央区下大川前通-2ノ町2230-33
158.81m2(48.04坪)
317,064円(税込)
お急ぎの方はお電話からお気軽にどうぞ!
025-211-8670 営業時間 / 9:30〜17:00 定休日 / 水曜日、日曜日


025-211-8670



















025-211-8670