情報更新日:2025年08月25日/広告有効期限:なし
表示閲覧回数(過去30日間):94
お急ぎの方はお電話からお気軽にどうぞ!
025-211-8670 営業時間 / 9:30〜17:00 定休日 / 水曜日、日曜日
>物件詳細情報
| 基本情報 | |
|---|---|
| 物件番号 | 10007806495 | 
| 店舗形態 | 事務所, 店舗 | 
| オススメ業種 | 事務所, 塾・学校・教育関係, 美容関係 | 
| 物件名 | 関屋本村町貸店舗事務所(齋藤マンション) | 
| 物件の状態 | 入居中 | 
| 引越し時期 | 2026(令和8)年02月中旬 | 
| 契約形態と期間 | 
        普通契約期間:2年間 | 
    
| 所在地・交通 | |
|---|---|
| 所在地 | 新潟県新潟市中央区関屋本村町1-148-5 | 
| 交 通1 | 新潟交通関屋本村町 徒歩1分 | 
| 交 通2 | 越後線関屋駅15分 | 
| 賃料 | |
|---|---|
| 賃 料 | 77,000円(税込) | 
| 敷 金 | 
      2ヶ月 | 
| 礼 金 | 1ヶ月 | 
| その他 | |
|---|---|
| 備考 | |
| 建物 | |
|---|---|
| 建物構造 | 鉄骨造 | 
| 建物階建て | 
      地上3階 | 
| 施工年月 | 1970(昭和45)年 03月 | 
| 募集物件の階数 | 地上 1階 3号室 | 
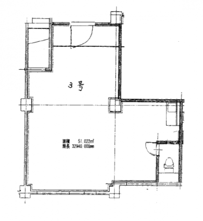
| 契約面積 | 51.02m2(15.43坪) | 
| 用途地域 | 1種中高 | 
| 設備 | |
|---|---|
| 水道 | 公営 | 
| ガス | 都市ガス | 
| エレベータ | 無 | 
| トイレ | 有/専用 | 
| キッチン | 有/専用 | 
| 駐車場 | |
|---|---|
| 状 況 | 空有 | 
| 駐車料金 | 8,800円(税込) | 
| 空き台数 | 1台 | 
| 取引情報 | |
|---|---|
| 取引態様 | 媒介 | 
| 客付 | 不可 | 
この物件をチェックした人はこんな物件も見ています
- 新潟市中央区文京町、3階建てビルの2階部分の募集です♪ 事務所や倉庫におすすめです☆
 
新潟県新潟市中央区文京町-6-27
 
          52.23m2(15.80坪)
          55,000円(税込)        
- 1階で物品や食品販売などができるスペースもあります♪ フリーレントもお気軽にご相談ください!
 
新潟県新潟市中央区東大畑通-2番町470
 
          84.79m2(25.65坪)
          45,000円(税込)        
- 新潟駅至近、ホテル内2階店舗、2022年10月外観改修済み☆
 
新潟県新潟市中央区弁天1-2-4
 
          126.45m2(38.25坪)
          589,050円(税込)        
- 小針十字路すぐ、小針駅までも徒歩4分、2階テナントの募集開始です☆(業種はご相談ください)
 
新潟県新潟市西区小針が丘-2-55
 
          91.22m2(27.59坪)
          110,000円(税込)        
- 新潟駅より徒歩3分!アクセス良好のオフィス物件です☆
 
新潟県新潟市中央区東大通1-7-10
 
          73.65m2(22.28坪)
          171,556円(税込)        
今日チェックした物件
お急ぎの方はお電話からお気軽にどうぞ!
025-211-8670 営業時間 / 9:30〜17:00 定休日 / 水曜日、日曜日


025-211-8670












       
       
       
      

          




025-211-8670