情報更新日:2025年09月29日/広告有効期限:なし
表示閲覧回数(過去30日間):60
お急ぎの方はお電話からお気軽にどうぞ!
025-211-8670 営業時間 / 9:30〜17:00 定休日 / 水曜日、日曜日
>物件詳細情報
| 基本情報 | |
|---|---|
| 物件番号 | 10007806507 | 
| 店舗形態 | 事務所 | 
| オススメ業種 | 事務所 | 
| 物件名 | けやきビル | 
| 物件の状態 | 入居中 | 
| 引越し時期 | 2026(令和8)年04月上旬 | 
| 契約形態と期間 | 
        普通契約期間:2年間 | 
    
| 所在地・交通 | |
|---|---|
| 所在地 | 新潟県新潟市中央区天神1-17-1 | 
| 交 通1 | 上越新幹線新潟駅 徒歩6分 | 
| 交 通2 | - | 
| 賃料 | |
|---|---|
| 賃 料 | 161,546円(税込) | 
| 敷 金 | 
      6ヶ月 | 
| 共益費・管理費 | 57,695円(税込) | 
| その他 | |
|---|---|
| 備考 | ※町内費:実費 ※近隣駐車場要相談 ※駐輪場有 | 
| 建物 | |
|---|---|
| 建物構造 | 鉄骨造 | 
| 建物階建て | 
      地上8階 | 
| 施工年月 | 1992(平成4)年 03月 | 
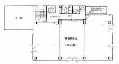
| 募集物件の階数 | 地上 5階 502号室 | 
| 契約面積 | 72.86m2(22.04坪) | 
| 敷地面積 | 479.73m2(145.12坪) | 
| 用途地域 | 商業地域 | 
| 設備 | |
|---|---|
| エレベータ | 有 | 
| エアコン | 有 | 
| トイレ | 有/共用 | 
| 給湯室 | 有/共用 | 
| キッチン | 有/共用 | 
| セキュリティ | 機械警備 | 
| 駐車場 | |
|---|---|
| 状 況 | 空有 | 
| 駐車料金 | 16,500円(税込) | 
| 取引情報 | |
|---|---|
| 取引態様 | 媒介 | 
| 客付 | 不可 | 
この物件をチェックした人はこんな物件も見ています
- 新潟市中央区文京町、3階建てビルの2階部分の募集です♪ 事務所や倉庫におすすめです☆
 
新潟県新潟市中央区文京町-6-27
 
          52.23m2(15.80坪)
          55,000円(税込)        
- 新潟駅至近、ホテル内2階店舗、2022年10月外観改修済み☆
 
新潟県新潟市中央区弁天1-2-4
 
          126.45m2(38.25坪)
          589,050円(税込)        
- 1階で物品や食品販売などができるスペースもあります♪ フリーレントもお気軽にご相談ください!
 
新潟県新潟市中央区東大畑通-2番町470
 
          84.79m2(25.65坪)
          45,000円(税込)        
- 木造平屋建て物件の一部、約11坪の倉庫です☆
 
新潟県新潟市東区牡丹山2-1-4
 
          38.07m2(11.52坪)
          55,000円(税込)        
- 中央区役所(NEXT21)や新潟市役所(学校町通)まで、どちらも徒歩で約10分の距離です♪ 東堀通のコインパーキング奥、2階建ての倉庫付き事務所☆
 
新潟県新潟市中央区東堀通-3番町466
 
          64.85m2(19.62坪)
          99,000円(税込)        
今日チェックした物件
お急ぎの方はお電話からお気軽にどうぞ!
025-211-8670 営業時間 / 9:30〜17:00 定休日 / 水曜日、日曜日


025-211-8670








                   
      

          




025-211-8670