情報更新日:2025年07月19日/広告有効期限:なし
表示閲覧回数(過去30日間):23
お急ぎの方はお電話からお気軽にどうぞ!
025-211-8670 営業時間 / 9:30〜17:00 定休日 / 水曜日、日曜日
>物件詳細情報
| 基本情報 | |
|---|---|
| 物件番号 | 10007806533 | 
| 店舗形態 | 事務所 | 
| オススメ業種 | 事務所 | 
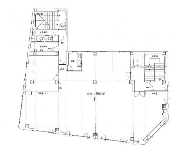
| 物件名 | 西堀フロント 3階F | 
| 物件の状態 | 空き | 
| 引越し時期 | 即 | 
| 契約形態と期間 | 
        普通契約期間:2年間 | 
    
| 所在地・交通 | |
|---|---|
| 所在地 | 新潟県新潟市中央区西堀通-3番町258-41 | 
| 交 通1 | 越後線白山駅 徒歩19分 | 
| 交 通2 | 新潟交通バス停「東中通」3分 | 
| 賃料 | |
|---|---|
| 賃 料 | 495,000円(税込) | 
| 敷 金 | 
      1ヶ月 | 
| その他 | |
|---|---|
| 備考 | ※当社指定の家賃保証会社にご加入いただきます ※テナント総合保険にご加入いただきます ※ALSOC加入済(月額警備費用は賃料に含む) ※電気は管理会社からの請求によりお支払いいただきます ※駐車場:ピロティ軽・小型13,200円、ピロティ普通16,500円、敷地外14,300円(要確認) | 
| 建物 | |
|---|---|
| 建物構造 | 鉄骨造 | 
| 建物階建て | 
      地上5階 | 
| 施工年月 | 1991(平成3)年 01月 | 
| 募集物件の階数 | 地上 3階 F号室 | 
| 契約面積 | 276.53m2(83.65坪) | 
| 用途地域 | 商業地域 | 
| 設備 | |
|---|---|
| エレベータ | 有 | 
| トイレ | 有/共用 | 
| 給湯室 | 有/共用 | 
| 駐車場 | |
|---|---|
| 状 況 | 空有 | 
| 駐車料金 | 16,500円(税込) | 
| 取引情報 | |
|---|---|
| 取引態様 | 媒介 | 
| 客付 | 不可 | 
この物件をチェックした人はこんな物件も見ています
- 新潟市中央区文京町、3階建てビルの2階部分の募集です♪ 事務所や倉庫におすすめです☆
 
新潟県新潟市中央区文京町-6-27
 
          52.23m2(15.80坪)
          55,000円(税込)        
- 新潟駅至近、ホテル内2階店舗、2022年10月外観改修済み☆
 
新潟県新潟市中央区弁天1-2-4
 
          126.45m2(38.25坪)
          589,050円(税込)        
- 1階で物品や食品販売などができるスペースもあります♪ フリーレントもお気軽にご相談ください!
 
新潟県新潟市中央区東大畑通-2番町470
 
          84.79m2(25.65坪)
          45,000円(税込)        
- 木造平屋建て物件の一部、約11坪の倉庫です☆
 
新潟県新潟市東区牡丹山2-1-4
 
          38.07m2(11.52坪)
          55,000円(税込)        
- 新潟駅徒歩圏内、万代エリアの貸事務所です☆ 8階建てビルの最上階♪
 
新潟県新潟市中央区弁天1-4-22
 
          94.09m2(28.46坪)
          220,000円(税込)        
今日チェックした物件
お急ぎの方はお電話からお気軽にどうぞ!
025-211-8670 営業時間 / 9:30〜17:00 定休日 / 水曜日、日曜日


025-211-8670






                   
      

          




025-211-8670