情報更新日:2025年09月25日/広告有効期限:なし
表示閲覧回数(過去30日間):25
お急ぎの方はお電話からお気軽にどうぞ!
025-211-8670 営業時間 / 9:30〜17:00 定休日 / 水曜日、日曜日
>物件詳細情報
| 基本情報 | |
|---|---|
| 物件番号 | 10007806580 |
| 店舗形態 | 事務所, 店舗 |
| オススメ業種 | 事務所, 美容関係, 塾・学校・教育関係, 医療関係 |
| 物件名 | ダイアパレスシアース万代西棟 |
| 物件の状態 | 空き |
| 引越し時期 | 即 |
| 契約形態と期間 |
普通契約期間:2年間更新料:1ヶ月 |
| 所在地・交通 | |
|---|---|
| 所在地 | 新潟県新潟市中央区万代5-7-2 |
| 交 通1 | 上越新幹線新潟駅 徒歩12分 |
| 交 通2 | - |
| 賃料 | |
|---|---|
| 賃 料 | 85,800円(税込) |
| 敷 金 |
2ヶ月 |
| 共益費・管理費 | 14,300円(税込) |
| 礼 金 | 1ヶ月 |
| その他 | |
|---|---|
| 備考 | ※業種や業態については、マンション管理組合の許可が必要です(理事会が月に1回) ※保証会社要加入:初回保証料として月額賃料等の100%、更新保証料として月額賃料等の10%、月額保証料として330円/月かかります。※駐車場の空きと料金は都度確認が必要です(保証金1ヶ月必要) |
| 建物 | |
|---|---|
| 建物構造 | 鉄骨鉄筋コンクリート造 |
| 建物階建て |
地上6階 |
| 施工年月 | 1995(平成7)年 01月 |
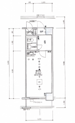
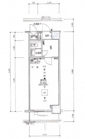
| 募集物件の階数 | 地上 3階 304号室 |
| 契約面積 | 29.70m2(8.98坪) |
| 用途地域 | 近商地域 |
| 設備 | |
|---|---|
| 水道 | 公営 |
| 下水道 | 公共下水 |
| ガス | 都市ガス |
| エレベータ | 有 |
| トイレ | 有/専用 |
| キッチン | 有/専用 |
| シャッター | 無 |
| 内装業者指定 | 無 |
| 駐車場 | |
|---|---|
| 状 況 | 空有 |
| 駐車料金 | 17,600円(税込) |
| 敷 金 | 1ヶ月 |
| 取引情報 | |
|---|---|
| 取引態様 | 媒介 |
| 客付 | 不可 |
この物件をチェックした人はこんな物件も見ています
- 新潟市中央区文京町、3階建てビルの2階部分の募集です♪ 事務所や倉庫におすすめです☆

新潟県新潟市中央区文京町-6-27
52.23m2(15.80坪)
55,000円(税込)
- 1階で物品や食品販売などができるスペースがあります♪ 住居としては利用できませんが、教室や作業場などにもおすすめです☆ 室内は自由にリノベーションできます(DIY可)

新潟県新潟市中央区東大畑通-2番町470
84.79m2(25.65坪)
45,000円(税込)
- 木造平屋建て物件の一部、約11坪の倉庫です☆ 倉庫のみで事務所部分はありません

新潟県新潟市東区牡丹山2-1-4
38.07m2(11.52坪)
55,000円(税込)
- 中央区役所(NEXT21)や新潟市役所(学校町通)まで、どちらも徒歩で約10分の距離です♪ 東堀通のコインパーキング奥、2階建ての倉庫付き事務所☆

新潟県新潟市中央区東堀通-3番町466
64.85m2(19.62坪)
99,000円(税込)
- 一棟貸しのテナント、建物裏手含めて13台駐車可能です☆ 店舗でも事務所でもご利用いただけます♪(業種はご相談ください)

新潟県新潟市東区藤見町2-8-9
155.50m2(47.04坪)
495,000円(税込)
今日チェックした物件
お急ぎの方はお電話からお気軽にどうぞ!
025-211-8670 営業時間 / 9:30〜17:00 定休日 / 水曜日、日曜日


025-211-8670



















025-211-8670