情報更新日:2026年01月05日/広告有効期限:なし
表示閲覧回数(過去30日間):32
お急ぎの方はお電話からお気軽にどうぞ!
025-211-8670 営業時間 / 9:30〜17:00 定休日 / 水曜日、日曜日
>物件詳細情報
| 基本情報 | |
|---|---|
| 物件番号 | 10007806605 |
| 店舗形態 | 事務所 |
| オススメ業種 | 事務所 |
| 物件名 | けやきビル |
| 物件の状態 | 入居中 |
| 引越し時期 | 2026(令和8)年04月上旬 |
| 契約形態と期間 |
普通契約期間:2年間 |
| 所在地・交通 | |
|---|---|
| 所在地 | 新潟県新潟市中央区天神1-17-1 |
| 交 通1 | 上越新幹線新潟駅 徒歩6分 |
| 交 通2 | - |
| 賃料 | |
|---|---|
| 賃 料 | 161,546円(税込) |
| 敷 金 |
6ヶ月 |
| 共益費・管理費 | 57,695円(税込) |
| その他 | |
|---|---|
| 備考 | ※町内費:実費 ※近隣駐車場要相談 ※駐輪場有 |
| 建物 | |
|---|---|
| 建物構造 | 鉄骨造 |
| 建物階建て |
地上8階 |
| 施工年月 | 1992(平成4)年 03月 |
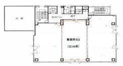
| 募集物件の階数 | 地上 7階 702号室 |
| 契約面積 | 72.86m2(22.04坪) |
| 敷地面積 | 479.73m2(145.12坪) |
| 用途地域 | 商業地域 |
| 設備 | |
|---|---|
| エレベータ | 有 |
| エアコン | 有 |
| トイレ | 有/共用 |
| 給湯室 | 有/共用 |
| キッチン | 有/共用 |
| セキュリティ | 機械警備 |
| 駐車場 | |
|---|---|
| 状 況 | 空有 |
| 駐車料金 | 16,500円(税込) |
| 取引情報 | |
|---|---|
| 取引態様 | 媒介 |
| 客付 | 不可 |
この物件をチェックした人はこんな物件も見ています
- 1階で物品や食品販売などができるスペースがあります♪ 住居としては利用できませんが、教室や作業場などにもおすすめです☆ 室内は自由にリノベーションできます(DIY可)

新潟県新潟市中央区東大畑通-2番町470
84.79m2(25.65坪)
45,000円(税込)
- 新潟市中央区文京町、3階建てビルの2階部分の募集です♪ 事務所や倉庫におすすめです☆

新潟県新潟市中央区文京町-6-27
52.23m2(15.80坪)
55,000円(税込)
- 中央区役所(NEXT21)や新潟市役所(学校町通)まで、どちらも徒歩で約10分の距離です♪ 東堀通のコインパーキング奥、2階建ての倉庫付き事務所☆

新潟県新潟市中央区東堀通-3番町466
64.85m2(19.62坪)
99,000円(税込)
- 木造平屋建て物件の一部、約11坪の倉庫です☆ 倉庫のみで事務所部分はありません

新潟県新潟市東区牡丹山2-1-4
38.07m2(11.52坪)
55,000円(税込)
- 一棟貸しのテナント、建物裏手含めて13台駐車可能です☆ 店舗でも事務所でもご利用いただけます♪(業種はご相談ください)

新潟県新潟市東区藤見町2-8-9
155.50m2(47.04坪)
495,000円(税込)
今日チェックした物件
お急ぎの方はお電話からお気軽にどうぞ!
025-211-8670 営業時間 / 9:30〜17:00 定休日 / 水曜日、日曜日


025-211-8670















025-211-8670