情報更新日:2026年03月09日/広告有効期限:なし
表示閲覧回数(過去30日間):72
お急ぎの方はお電話からお気軽にどうぞ!
025-211-8670 営業時間 / 9:30〜17:00 定休日 / 水曜日、日曜日
>物件詳細情報
| 基本情報 | |
|---|---|
| 物件番号 | 10007806613 |
| 店舗形態 | 事務所 |
| オススメ業種 | 事務所 |
| 物件名 | JENIC弁天ビル |
| 物件の状態 | 改築中 |
| 引越し時期 | 2026(令和8)年05月下旬 |
| 契約形態と期間 |
定期再契約:可 |
| 所在地・交通 | |
|---|---|
| 所在地 | 新潟県新潟市中央区弁天3-1-3 |
| 交 通1 | 信越本線新潟駅 徒歩3分 |
| 交 通2 | - |
| 賃料 | |
|---|---|
| 賃 料 | 778,000円(税込) |
| 敷 金 |
6ヶ月 |
| その他 | |
|---|---|
| 備考 | ※6月末までは電気使用量に制限がございます。 ※電気・水道はご使用分の請求がかかります。 |
| 建物 | |
|---|---|
| 建物構造 | 鉄骨鉄筋コンクリート造 |
| 建物階建て |
地上7階 |
| 施工年月 | 2011(平成23)年 11月 |
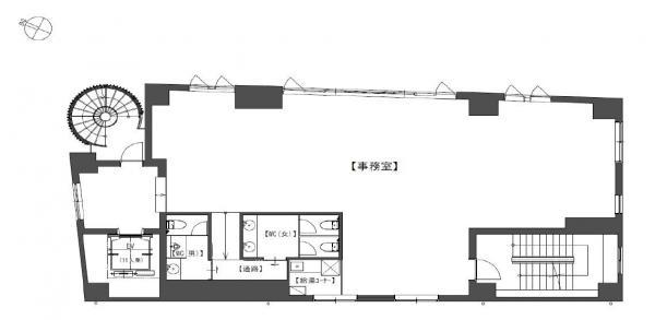
| 募集物件の階数 | 地上 4階 |
| 契約面積 | 150.70m2(45.59坪) |
| 用途地域 | 商業地域 |
| 設備 | |
|---|---|
| 水道 | 公営 |
| 下水道 | 公共下水 |
| エレベータ | 有 |
| エアコン | 有 |
| トイレ | 有/専用 |
| 給湯室 | 有/専用 |
| 床仕様 | OAフロア |
| 照明設備 | 有 |
| 駐車場 | |
|---|---|
| 状 況 | 近隣 |
| 取引情報 | |
|---|---|
| 取引態様 | 媒介 |
| 客付 | 不可 |
この物件をチェックした人はこんな物件も見ています
- 新潟市中央区文京町、3階建てビルの2階部分の募集です♪ 事務所や倉庫におすすめです☆

新潟県新潟市中央区文京町-6-27
52.23m2(15.80坪)
55,000円(税込)
- 1階で物品や食品販売などができるスペースがあります♪ 住居としては利用できませんが、教室や作業場などにもおすすめです☆ 室内は自由にリノベーションできます(DIY可)

新潟県新潟市中央区東大畑通-2番町470
84.79m2(25.65坪)
45,000円(税込)
- 木造平屋建て物件の一部、約11坪の倉庫です☆ 倉庫のみで事務所部分はありません

新潟県新潟市東区牡丹山2-1-4
38.07m2(11.52坪)
55,000円(税込)
- 中央区役所(NEXT21)や新潟市役所(学校町通)まで、どちらも徒歩で約10分の距離です♪ 東堀通のコインパーキング奥、2階建ての倉庫付き事務所☆

新潟県新潟市中央区東堀通-3番町466
64.85m2(19.62坪)
99,000円(税込)
- 一棟貸しのテナント、建物裏手含めて13台駐車可能です☆ 店舗でも事務所でもご利用いただけます♪(業種はご相談ください)

新潟県新潟市東区藤見町2-8-9
155.50m2(47.04坪)
495,000円(税込)
今日チェックした物件
お急ぎの方はお電話からお気軽にどうぞ!
025-211-8670 営業時間 / 9:30〜17:00 定休日 / 水曜日、日曜日


025-211-8670













025-211-8670