情報更新日:2024年02月02日/広告有効期限:なし
表示閲覧回数(過去30日間):33
お急ぎの方はお電話からお気軽にどうぞ!
025-211-8670 営業時間 / 9:30〜17:00 定休日 / 水曜日、日曜日
>物件詳細情報
| 基本情報 | |
|---|---|
| 物件番号 | 10007805311 |
| 店舗形態 | 事務所 |
| オススメ業種 | 事務所 |
| 物件名 | 荏原新潟ビル |
| 物件の状態 | 空き |
| 引越し時期 | 即 |
| 契約形態と期間 | |
| 所在地・交通 | |
|---|---|
| 所在地 | 新潟県新潟市中央区新光町-16-4 |
| 交 通1 | 新潟交通バス停「出来島変電所」 徒歩7分 |
| 交 通2 | - |
| 賃料 | |
|---|---|
| 賃 料 | 賃料未定 |
| 保証金 | 8ヶ月 |
| その他 | |
|---|---|
| 備考 | ※平面駐車場:敷地内空車8台+敷地内新設12台 隣地駐車場3台(台数応相談) ※平日日中は管理人が常駐しております ※2023年6月 共用部リニューアル完工 |
| 建物 | |
|---|---|
| 建物構造 | 鉄骨鉄筋コンクリート造 |
| 建物階建て |
地上7階 |
| 施工年月 | 1989(平成元年)年 02月 |
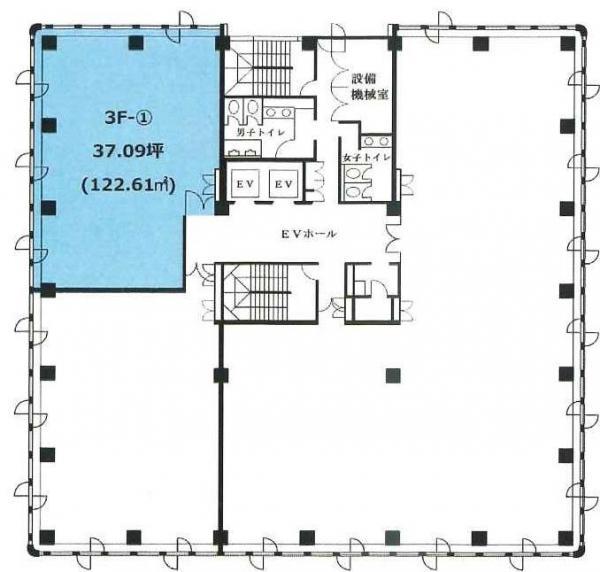
| 募集物件の階数 | 地上 3階 301号室 |
| 契約面積 | 122.61m2(37.09坪) |
| 延床面積 | 5,426.64m2(1,641.56坪) |
| 敷地面積 | 1,852.41m2(560.35坪) |
| 設備 | |
|---|---|
| エレベータ | 有/2基 |
| エアコン | 有り/セントラル(全館) |
| トイレ | 有/共用 |
| 給湯室 | 有/共用 |
| キッチン | 有/共用 |
| ネット環境 | 有 |
| 床仕様 | OAフロア |
| セキュリティ | 機械警備 |
| 利用時間 | 24時間 |
| 駐車場 | |
|---|---|
| 状 況 | 空有 |
| 駐車料金 | 11,000円(税込) |
| 取引情報 | |
|---|---|
| 取引態様 | 媒介 |
| 客付 | 不可 |
この物件をチェックした人はこんな物件も見ています
- 1階で物品や食品販売などができるスペースがあります♪住居としては利用できませんが、教室や作業場などにもおすすめです☆

新潟県新潟市中央区東大畑通-2番町470
84.79m2(25.65坪)
45,000円(税込)
- 新潟市中央区文京町、3階建てビルの2階部分の募集です♪ 事務所や倉庫におすすめです☆

新潟県新潟市中央区文京町-6-27
52.23m2(15.80坪)
55,000円(税込)
- 中央区役所(NEXT21)や新潟市役所(学校町通)まで、どちらも徒歩で約10分の距離です♪ 東堀通のコインパーキング奥、2階建ての倉庫付き事務所☆

新潟県新潟市中央区東堀通-3番町466
64.85m2(19.62坪)
99,000円(税込)
- 木造平屋建て物件の一部、約11坪の倉庫です☆ 倉庫のみで事務所部分はありません

新潟県新潟市東区牡丹山2-1-4
38.07m2(11.52坪)
55,000円(税込)
- 1階倉庫2階事務所仕様のウェルズ平島に空きが出ます! 駐車場前面2台分無料♪ 追加駐車場もご用意できます☆

新潟県新潟市西区平島-1364-2
75.60m2(22.87坪)
132,000円(税込)
今日チェックした物件
お急ぎの方はお電話からお気軽にどうぞ!
025-211-8670 営業時間 / 9:30〜17:00 定休日 / 水曜日、日曜日


025-211-8670



















025-211-8670