情報更新日:2024年02月01日/広告有効期限:なし
表示閲覧回数(過去30日間):22
お急ぎの方はお電話からお気軽にどうぞ!
025-211-8670 営業時間 / 9:30〜17:00 定休日 / 水曜日、日曜日
>物件詳細情報
| 基本情報 | |
|---|---|
| 物件番号 | 10007805853 |
| 店舗形態 | 店舗, 事務所 |
| オススメ業種 | 事務所, 塾・学校・教育関係, 美容関係, 医療関係 |
| 物件名 | Mys本町ビル |
| 物件の状態 | 空き |
| 引越し時期 | 相談 |
| 契約形態と期間 |
普通契約期間:5年間 |
| 所在地・交通 | |
|---|---|
| 所在地 | 新潟県新潟市中央区本町通-7番町1146 |
| 交 通1 | 新潟交通バス停「本町」 徒歩3分 |
| 交 通2 | 信越本線新潟駅27分 |
| 賃料 | |
|---|---|
| 賃 料 | 297,000円(税込) |
| 敷 金 |
3ヶ月 |
| 共益費・管理費 | 44,000円(税込) |
| その他月額費用 1 | セコム保守料 11,000円(税込) |
| その他月額費用 2 | 町内費 1,000円(税込) |
| その他月額費用 3 | CATV料 330円(税込) |
| 礼 金 | 1ヶ月 |
| その他 | |
|---|---|
| 備考 | ※セコム導入費:77,000円 ※保証会社に加入いただく場合があります ※内装工事費の負担区分についてはご相談ください |
| 建物 | |
|---|---|
| 建物構造 | 鉄骨造 |
| 建物階建て |
地上3階 |
| 施工年月 | 2016(平成28)年 09月 |
| 募集物件の階数 | 地上 3階 |
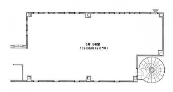
| 契約面積 | 139.08m2(42.07坪) |
| 設備 | |
|---|---|
| エレベータ | 有 |
| 駐車場 | |
|---|---|
| 状 況 | 空有 |
| 駐車料金 | 16,500円(税込) |
| 取引情報 | |
|---|---|
| 取引態様 | 媒介 |
| 客付 | 不可 |
この物件をチェックした人はこんな物件も見ています
- 1階で物品や食品販売などができるスペースもあります♪ フリーレントもお気軽にご相談ください!

新潟県新潟市中央区東大畑通-2番町470
84.79m2(25.65坪)
45,000円(税込)
- 新潟市中央区文京町、3階建てビルの2階部分の募集です♪ 事務所や倉庫におすすめです☆

新潟県新潟市中央区文京町-6-27
52.23m2(15.80坪)
55,000円(税込)
- 万代エリアの飲食店可テナントです☆ 2階ワンフロア貸し、サロンやクリニックなどにもおすすめです♪

新潟県新潟市中央区万代1-1-26
193.87m2(58.65坪)
440,000円(税込)
- 木造平屋建て物件の一部、約11坪の倉庫です☆

新潟県新潟市東区牡丹山2-1-4
38.07m2(11.52坪)
55,000円(税込)
- 新潟駅近く、けやき通り沿いビルの2階テナントです☆ 1階にセブンイレブンが入ってます♪

新潟県新潟市中央区天神1-17-1
72.86m2(22.04坪)
161,546円(税込)
今日チェックした物件
- コンベンションセンターと連携した次世代型ビジネス拠点としてご活用ください☆
-

新潟県新潟市中央区万代島-5番1号
111.50m2(33.73坪)
296,824円(税込)
- 平成10年築、万代橋たもとの10階建てオフィスビルです♪ ご内覧希望の際は、事前にご連絡をお願いします!
-

新潟県新潟市中央区礎町通-ニノ町2077
122.68m2(37.11坪)
賃料未定
- 平成10年築、万代橋たもとの10階建てオフィスビルです♪ ご内覧希望の際は、事前にご連絡をお願いします!
-

新潟県新潟市中央区礎町通-ニノ町2077
107.80m2(32.61坪)
賃料未定
- 新潟駅から徒歩3分のビルです☆テナント様専用の貸し会議室やリフレッシュルーム(喫煙室)などもあります♪ご内覧希望の際は、事前にご予約をお願いします!
-

新潟県新潟市中央区米山3-1-63
118.38m2(35.81坪)
326,945円(税込)
- 西堀通沿いの貸事務所になります☆ 事務所におすすめです♪
-

新潟県新潟市中央区西堀前通-1番町703番地
160.60m2(48.58坪)
148,500円(税込)
お急ぎの方はお電話からお気軽にどうぞ!
025-211-8670 営業時間 / 9:30〜17:00 定休日 / 水曜日、日曜日


025-211-8670



















025-211-8670